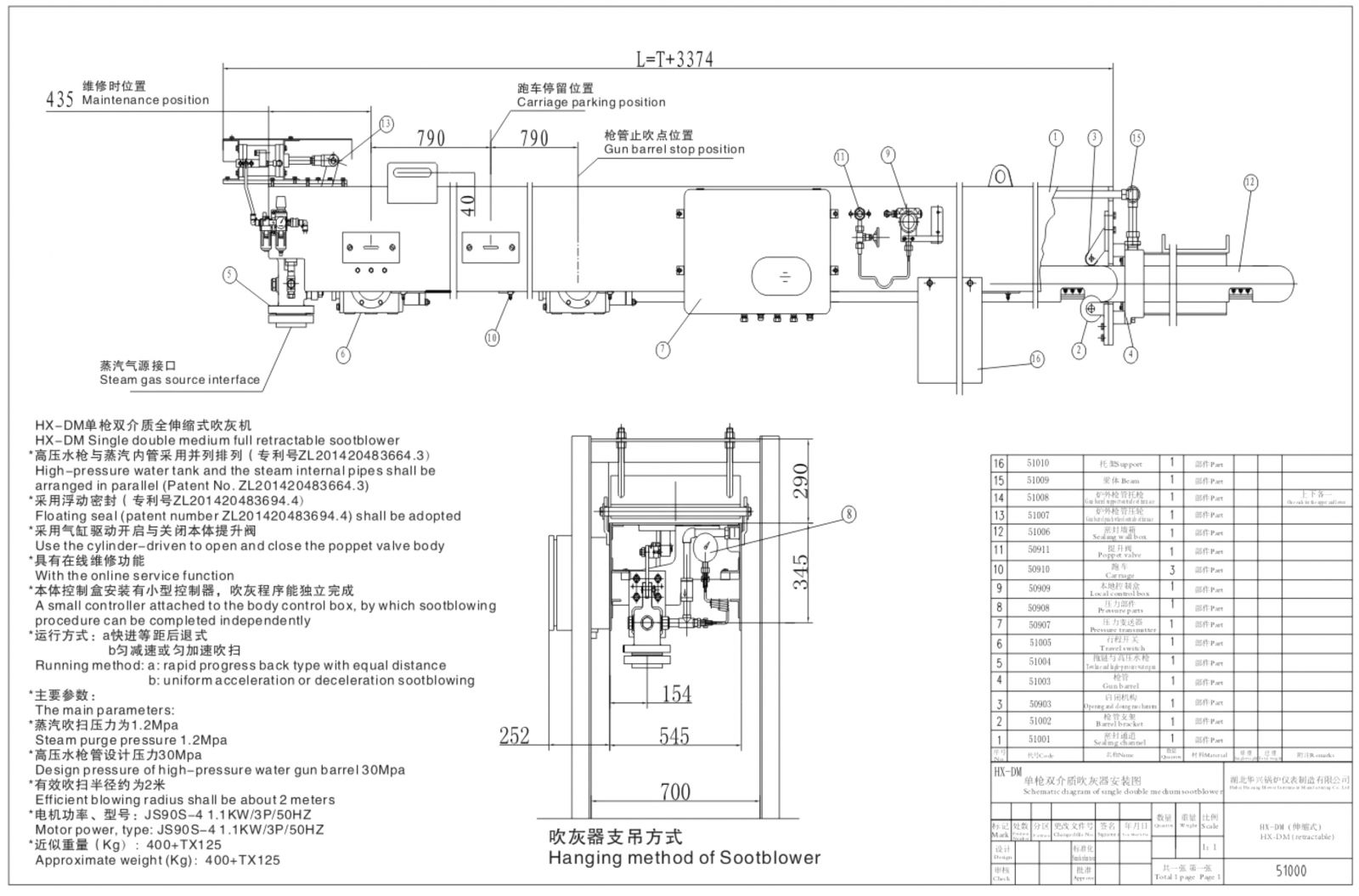
Main parameters
1. Medium (1) Steam purging:
Choose the purging method according to needs: a. Fast forward and backward, step distance 25 mm b. Uniform deceleration or uniform acceleration
Medium (2) high-pressure water purge: design pressure 30Mpa, pump flow 20T/h.
Choose the purge method as needed: a. Fast forward and backward, step 10 mm b. Uniform deceleration or uniform acceleration
2. Motor power and model: JS90S-41.1KW/3P/50HZ
3. Approximate weight: 360+TX120
HX-DM single gun Dual-media soot blower








Senior engineer 