HX-AH air preheater soot blower is mainly used to clean the heat exchange surface of the rotary air preheater. Its characteristics are as follows:
※The reasonable arrangement of the nozzles and the traveling speed of the nozzle ensure that the heat exchange surface is effectively purged
※Changing the position of the pressure regulating plate can change the size of the soot blowing pressure
※The unique flexible valve seat design does not affect the sealing effect due to changes in temperature difference
※Box Type beam body The structure provides support and maximum protection for all parts.
※ The effective protection of the elastic cable by the beam body greatly improves the service life of the elastic cable.
※ The barrel flange is designed as a welded flange, with an arc transition between the flange and the barrel. , small stress, long life
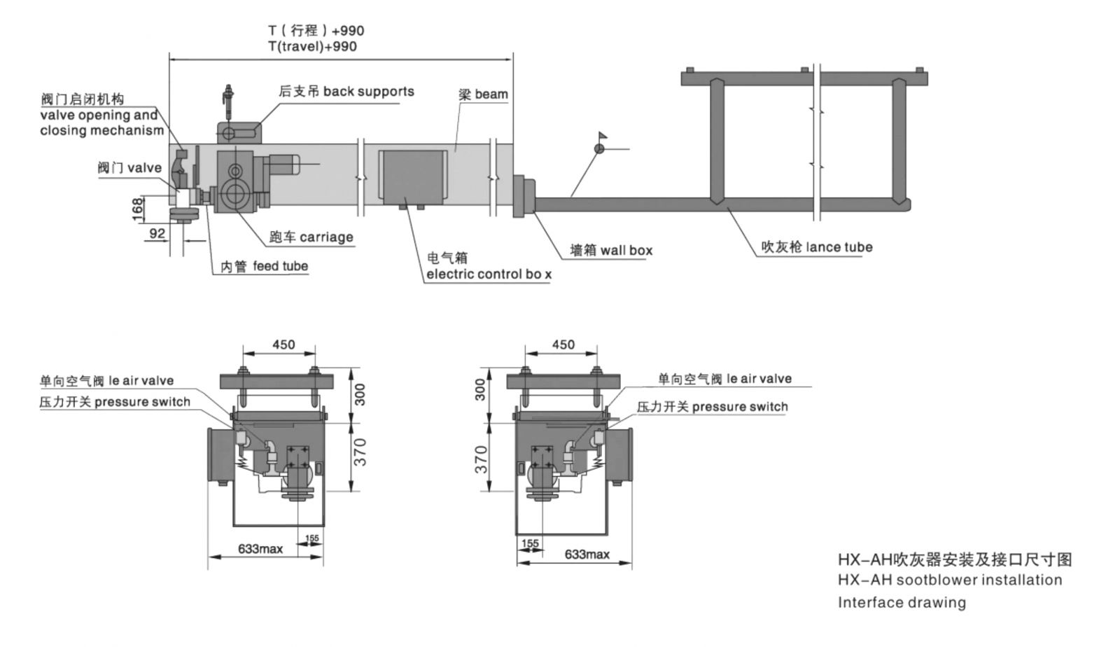
Structure of HX-AH soot blower
HX-AH type soot blower is mainly composed of sports car, poppet valve, beam body, wall box, inner pipe, soot blowing gun and nozzle, electrical box and control, etc.
.jpg)







Senior engineer 